Apresentamos este elegante escritório na Estrela, uma das zonas mais prestigiadas e valorizadas de Lisboa. Localizado em frente ao emblemático Jardim da Estrela, este espaço foi totalmente renovado no início de 2024, oferecendo um ambiente moderno, funcional e banhado por luz natural – ideal para fomentar a produtividade e o bem-estar no local de trabalho.
Com uma área generosa e uma disposição pensada para a eficiência, este escritório é perfeito para empresas em crescimento, negócios consolidados ou investidores à procura de um ativo de excelência com rendimento garantido.
Destaques do imóvel:
– Área ampla com excelente aproveitamento de espaço;
– Luz natural abundante, proporcionando um ambiente acolhedor e inspirador;
– Localização privilegiada, com fácil acesso a transportes, serviços e zonas centrais.
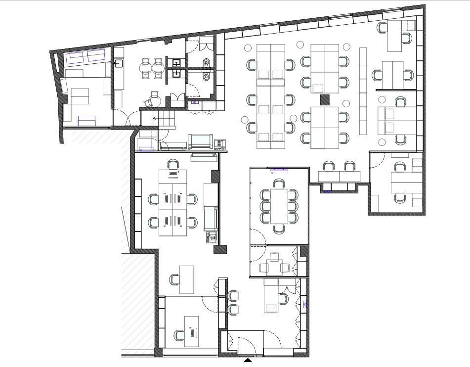
Distribuição do espaço interior:
– 34 postos de trabalho (expansível até cerca de 40);
– 2 open spaces, 4 gabinetes e 2 salas de reunião;
– Receção, copa equipada e 2 casas de banho de serviço;
– Arrecadação e casa de máquinas;
– 8 lugares de estacionamento em cave.
Infraestrutura renovada (2024):
– Sistema de ar condicionado novo;
– Tetos falsos com isolamento acústico nas salas e gabinetes;
– Caixilharia de elevada performance acústica;
– Pavimento técnico para maior flexibilidade operacional.
Investimento com rentabilidade:
Atualmente arrendado com contrato ativo por mais 8 anos, o imóvel gera uma rentabilidade anual de 65.000€, representando uma excelente oportunidade para quem procura um investimento seguro e duradouro.
Não perca esta oportunidade única de adquirir um espaço de prestígio num dos bairros mais charmosos e centrais de Lisboa.
Contacte a GROW e saiba mais sobre este ativo exclusivo.